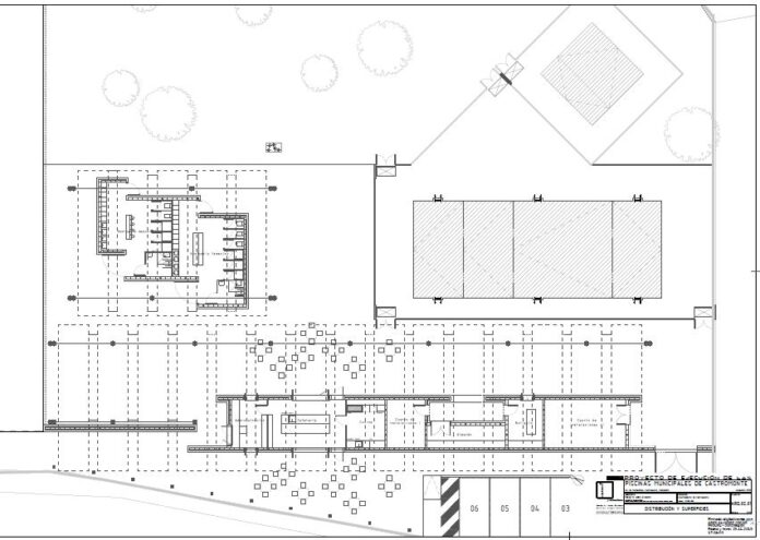
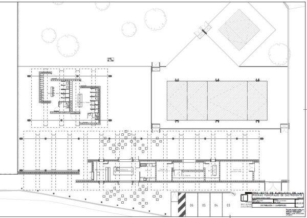
El ayuntamiento de Castromonte ha adjudicado las obras de construcción de la piscina municipal a la empresa vallisoletana CREALIA

Las obras tiene un un plazo de ejecución de 5 meses y el contrato se ha formalizado con un importe de 543.000 euros.

Si eres socio de la Cámara de Contratistas puedes consultar toda la información relacionada con esta obra: Referencia SIAS 19004593 pinchando aquí

FUENTE: Cámara de Contratistas de Castilla y León